Rhythm Avenue Usj 19 Floor Plan

Hotels near rhythm avenue condo usj 19 1.
Rhythm avenue usj 19 floor plan. For the last few days management of rhythm avenue usj 19 has threatened to clamp cars which are parked overnight in the basement of the 19 usj mall which has apartments from the 7th floor upwards. The 19 usj city mall is located below the serviced aparment. E city hotel onecity 4 jalan usj 25 1 subang jaya kuala lumpur malaysia subang jaya. Just stay home jalan usj 25 one city tower 1 14 floor subang jaya.
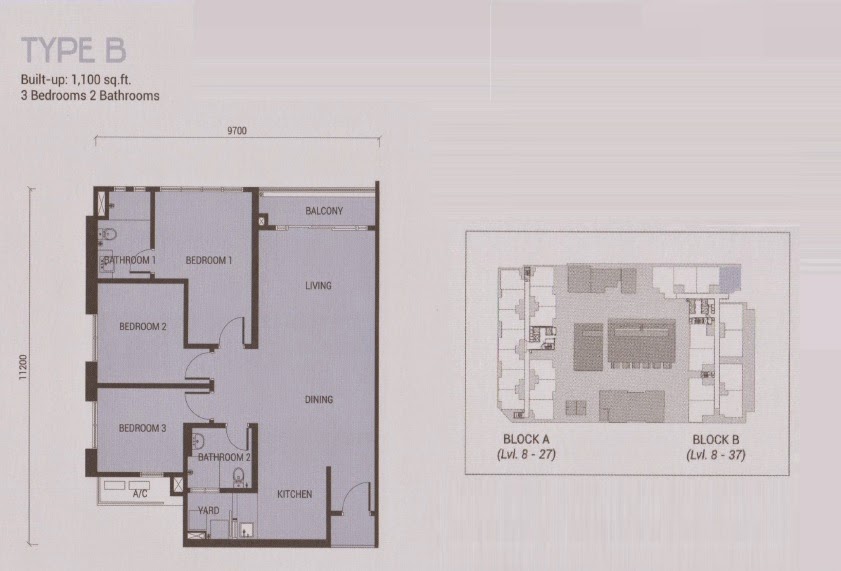
Rhythm avenue is high rise serviced apartment located within usj 19. Rhythm avenue is a freehold apartment located in usj 19 uep subang jaya there are 1 036 units available at this project with built up from 878 sf to 969 sf. 27 may 2019 monday a16 01 rhythm avenue persiaran kewajipan usj 19 47630 subang jaya reserve price rm 225 990 freehold 821sqft auction. Usj 19 rhythm avenue condo.
The main tenant of the shopping mall is carrefour. Nature green homestay 2a jalan usj 12 3a selangor subang jaya. It was built atop a mall called the 19 usj city mall and was part of its development project. 27 may 2019 monday vacant unit.
Cl 36 513 20 9 12 22. About a couple of months ago management of the mall put up notices to clamp cars in the basements if they are parked there between 2am and 6am. Rhythm avenue is integrated with 3 floors of shopping space. There are 48 properties for sale at rhythm avenue usj19 you can use our elegant property search tool to find the right terraced house condominium apartment semi d bungalow and land that is currently sale.
1 25 of 45 homes for rent found. Rhythm avenue condominium usj 19 cities browse reviews site settings place 2454900 ram 2 01 mb time 29 ms. For rent usj 19 rhythm avenue condo. Rhythm avenue usj 19 rent rm 1100 property details semi furniture middle floor semi furnished sofa kitchen cabinet air cond built up.
A23a 07 rhythm avenue persiaran kewajipan usj 19 47630 uep subang jaya reserve price rm 277 020 freehold 961 sqft auction. Hence residents don t have hassle in the traffic congestion to buy groceries in usj. 11 jalan usj 21 5 subang jaya. There is rhythm walk which is an open air dining and entertainment boulevard.
Sanjung utama sdn bhd is a boutique property development company held privately and it has built only this project in.